




Álftröð 1
200 Kópavogur
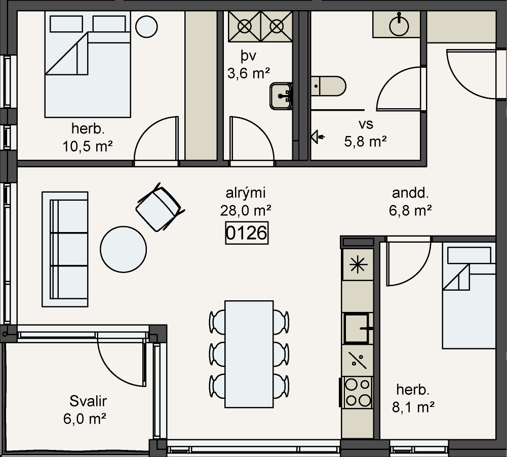
Íbúð81.2 m²2 svefnherbergi
Fylgifé
Ísskápur
Uppþvottavél
Bílskúr
Svalir
Eldhús
Án húsgagna
Hiti og rafmagn
Hiti ekki innifalinn
Rafmagn ekki innifalið
Hússjóður ekki innifalinn
Internet ekki innifalið
Húsreglur
Reykingar ekki leyfðar
Hámark 4 leigutakar
Gæludýr ekki leyfð
Mánaðarleiga
360.000 kr
2 umsóknir hafa verið sendar
Laus frá
1 maí 2026
Leigutímabil
Ótakmarkað
Fyrsti mánuður
360.000 kr
Tryggingafé
3 mánuðir / 1.080.000 krInnflutningsverð
1.440.000 kr

Leigt út af Kateryna