




Langalína 2
210 Garðabær
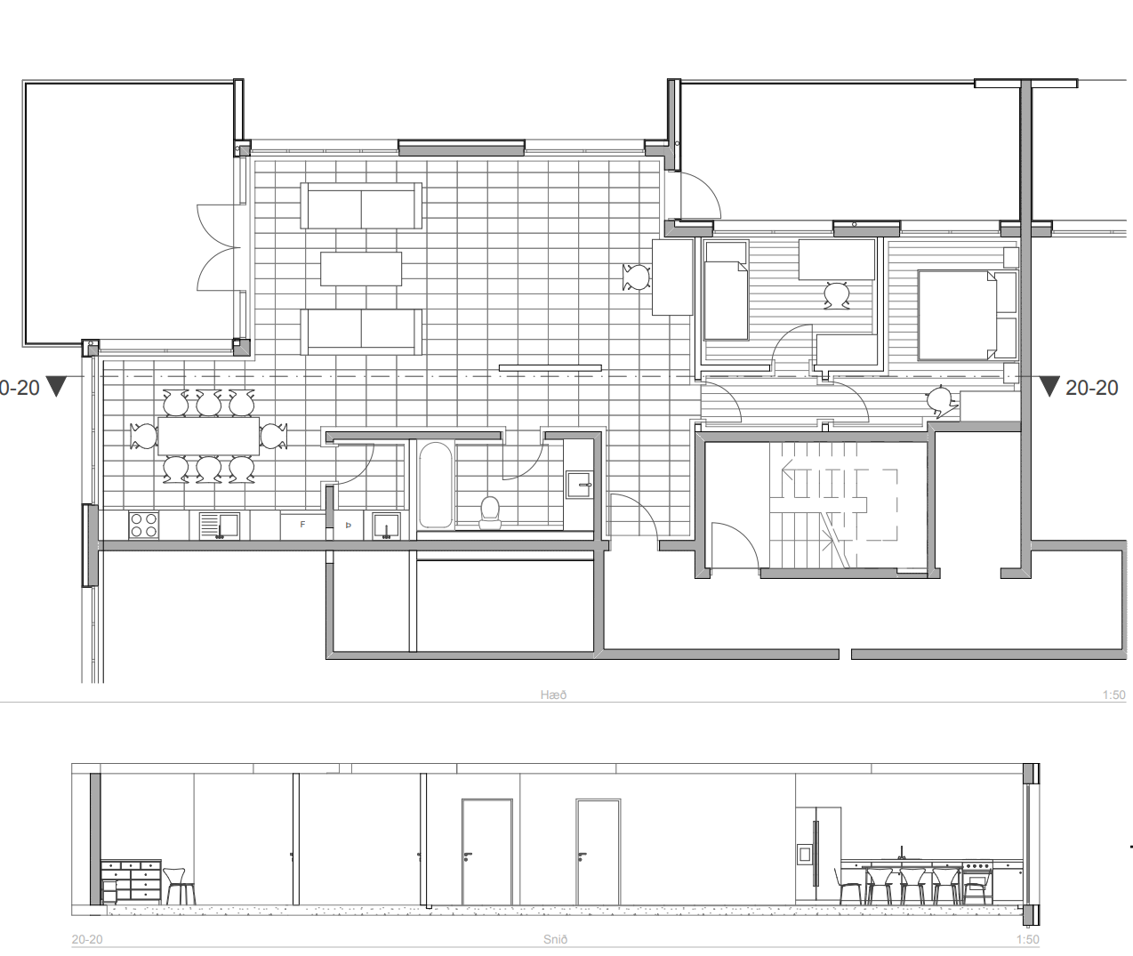
Íbúð120.7 m²2 svefnherbergi
Fylgifé
Ísskápur
Uppþvottavél
Örbylgjuofn
Þvottavél
Bílskúr
Svalir
Geymsla
Eldhús
Með húsgögnum
Hiti og rafmagn
Hiti innifalinn
Rafmagn innifalið
Hússjóður innifalinn
Internet innifalið
Húsreglur
Reykingar ekki leyfðar
Kettir leyfðir
Fuglar leyfðir
Hundar leyfðir
Fiskar leyfðir
Nagdýr leyfð
Mánaðarleiga
420.000 kr
Laus frá
1 okt 2025
Leigutímabil
2 - 6 mánuðir
Fyrsti mánuður
420.000 kr
Tryggingafé
2 mánuðir / 840.000 krInnflutningsverð
1.260.000 kr
G
Leigt út af Gunnar