




Grensásvegur 1A
108 Reykjavík
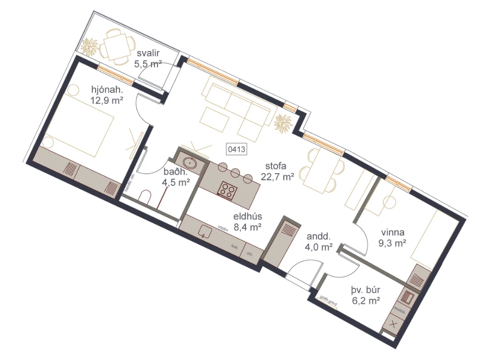
Íbúð89.6 m²2 svefnherbergi
Fylgifé
Geymsla
Svalir
Ísskápur
Eldhús
Án húsgagna
Hiti og rafmagn
Hiti innifalinn
Rafmagn ekki innifalið
Hússjóður innifalinn
Internet ekki innifalið
Húsreglur
Reykingar ekki leyfðar
Kettir leyfðir
Fiskar leyfðir
Fuglar leyfðir
Nagdýr leyfð
Mánaðarleiga
375.000 kr
2 umsóknir hafa verið sendar
Leigutímabil
Ótakmarkað
Fyrsti mánuður
375.000 kr
Tryggingafé
3 mánuðir / 1.125.000 krInnflutningsverð
1.500.000 kr

Leigt út af Magnús